TYPE
DKR CORRIDER OPERATOR
Type DKR Operators are medium security, unlocking systems
for sliding corridor doors not exceeding 300 pounds.
Drive Type: Manual
Release Type: Remote Electric, Local Mechanical
Security Level: Medium/Maximum
APPLICATIONS
DKR Operators may be specified for any corridor or entrance door requiring remote
electric unlocking with manual movement of the door to open or closed position
Click Here for
Quote Request
Please Click on Captions below to display / hide information:
FUNCTIONS
Unit unlocks a door from a
remotely located control console by push button, and the door starter pushes the
door open a few inches. It may then be opened the rest of the distance manually.
Individual doors may be opened by prison paracentric key at the release column.
LOCKING
SYSTEM
Doors automatically snaplock
and deadlock upon closure at two points on the top and bottom rear of the door.
Locking components are completely concealed, and not subject to inmate tampering.
Components do not project into door opening.
TESTING
DKR Operators have been thoroughly
function tested, and have been in service since 1978. Folger Adam Security Inc.
has established criteria for this system at 500,000 cycles.
STANDARD
FEATURES
- Motor voltage: 120VAC
- Individual motor operation - Each door is unlocked by its
own motor.
- Heavy duty construction - DKR Operators are ruggedly built
for the detention environment.
- Tamper-resistance - All housing openings are baffled to preclude
inmate pampering.
- Sloped-top housing - Eliminates hiding contraband. Flat-top
housing provided where operator is install close to the ceiling.
- Automatic deadlocking - Units snaplock and automatically deadlock
when closed.
- Indication switch - Monitors the deadlocked condition of both
locking points.
OPTIONAL
FEATURES
- Key switch - An electrically operated key switch may be added to the release
column for local electric operation.
- Electric controls - A control console with push button switch, red and green
indication lamps, and power cut-off switch may be provided.
- Interlocking - Wiring and adaptations may be made to permit interlocking of
two or more doors in a sallyport or vestibule application. Prevents electrical
operation of any other interlocked door.
- Custom graphic consoles - In many cases, corridor operators are merely one
part of a complete security system, For these larger installations, or those with
particular needs, custom-built control consoles may easily be provided with floor
plan graphics screened on the control panel, and an array of specialized features.
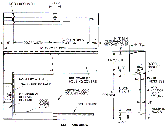
DIMENSIONAL
DATA

Note: The above illustration is intended for general information
and planning purposes only. Folger Adam locking devices are custom-built to the
design of the facility. The drawings on these pages should not be construed as
complete, or indicative of our manufacturing capabilities.
SPECIFICATIONS
Unlocking System
Type: Manual
Motor: 120VAC, 60Hz
Hanger and Guides: ¼" thick steel
Rollers: Anti-friction ball bearings with hardened members and grease shield
Finish: USP primed
Mechanism Housing/Covers
Housing: 7 gauge steel
Housing Covers: 10 gauge steel
Vertical Lock Column Housing: 7 gauge steel
Vertical Lock Column Cover: 10 gauge steel
Mechanical Release Column (optional): 7 gauge steel with 10 gauge steel front
receiver
Finish: USP primed
|