TYPE
G OPERATORS: SINGLE AND BI-PARTING GATES
Type G Operators are maximum security, motorized sliding
gate operators for single or double (bi-parting) gates up to a maximum 24' width.
Single gate should not exceed 6,000 pounds, double gates should not exceed 6,000
pounds total.
Drive Type: Roller Chain
Release Type: Remote Electric, Local Mechanical
Security Level: Maximum
APPLICATIONS
G Operators are applicable to any exterior entrance for passenger vehicles or
trucks.
Click Here for
Quote Request
Please Click on Captions below to display / hide information:
FUNCTIONS
Unit unlocks and opens or closes
and locks a single door from a set of remote push buttons (OPEN-CLOSE-STOP)FUNCTIONS:
Unit unlocks and opens or closes and locks a single door from a set of remote
push buttons (OPEN-CLOSE-STOP)
The bi-parting G Operator is manually locked or unlocked at the door by a cremone
bolt located in the gates. The gates may then be operated form a remote set of
push buttons, (OPEN-CLOSE-STOP)
In event of emergency or power failure, doors may be mechanically unlocked by
prison paracentric key, and hand cranked to open or closed position.
Gate movement may be stopped in mid-travel, and restarted in the desired direction
by pressing appropriate push button.
Note: When the operator is in the closed position, it is impossible to move the
door(s) to the open position, except by electrical or hand crank methods.
LOCKING
SYSTEM
Single Door Model: Secured by
an 800 Series lock located in a column at the front of the door.
Bi-parting Door Model: Secured by cremone bolts operated by prison paracentric
key.
TESTING
G Operators have been thoroughly function tested, and in service since 1958.
STANDARD
FEATURES
- Motor voltage - 120/208 VAC
- Rugged chain drive - Provides sure action of the door under
a variety of conditions and installation variables.
- Heavy duty contruction - G Operators offer welded steel construction
and rugged components for durability in exterior applications.
- Self-supporting - Heavy columns and beams combine to make the
structure self-supporting.
- Control station - Three push buttons (OPEN-CLOSE-STOP) provide
remote operation. Red and green indicator lights show open and closed condition
(respectively) of gates.
- Interlock feature - Two or more operators may be electrically
interlocked so that only one may be unlocked and operated at a time.
- Emergency mechanical operation - In event of power failure
unlocking the column provides access to the release mechanism. The door may then
be opened by hand crank.
OPTIONAL
FEATURES
- Custom graphic consoles - In many cases, operators are merely one part of
a complete security system. For these larger installations, or those with particular
needs, custom-built consoles may be easily provided with floor plan graphics screened
on the control panel, and an array of specialized features.
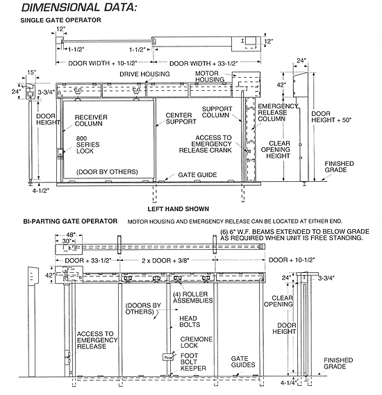
DIMENSIONAL
DATA

Note: The above illustration is intended for general information
and planning purposes only. Folger Adam locking devices are custom-built to the
design of the facility. The drawings on these pages should not be construed as
complete, or indicative of our manufacturing capabilities.
SPECIFICATIONS
Drive System
Type: Roller Chain
Roller chain: #60
Motor: 120/208 VAC, 60HZ, 1-1/2 HP
Trolley Hangers: 1-1/2 ton capacity
Locking Column: 7 gauge steel plate construction with swinging-type door equipped
with two #3 hinges, and secured by an 80 Series Deadlock.
Mechanism Housing/Covers
Mechanism Cover: 7 gauge steel plate
Housing: 7 gauge steel plate
Gate Guides: 5" I-beam with forged and welded steel guides
Finish: USP primed, except track, rollers and drive mechanism
Trolley Track: 8" I-beam x 23 pounds
Support Beams: 6" WF beam x 20 pounds
|